SZH-200型標準拍擊式振動實驗篩機![]() 拍擊振篩機用途和性能:SZH-200型標準拍擊式振動實驗篩機,配合試驗篩、分樣篩使用可對冶金、化工、磨料、硬材料、飼料、食品、醫藥等行業的粉體材料進行篩分生產、檢驗。 主要技術參數: 1、可放篩子直徑:200、150、100、75(mm) 產品包裝:木箱,尺寸(內徑):長570mm, 寬540mm,高760mm,重88公斤 拍擊式振篩機工作原理及結構特點: 拍擊式自動振篩機是電機帶動齒輪通過同步帶傳動到主軸上,經齒輪變速后主軸按要求的轉速轉動,主軸帶動偏心輪使滑板做往復運動,帶動安裝在滑板托盤中的試驗篩左右搖動,同時主軸帶動頂桿齒輪轉動,變速后頂桿齒輪通過凸輪頂擊頂桿,頂桿使拍錘上下拍擊試驗篩上蓋,使得試驗篩、分樣篩中的物料往復和上下振動,使小于試驗篩的篩面網孔的物料顆粒篩分進下層試驗篩,如此層層篩選,使每層試驗篩內只留相同粒度的物料。達到不同粒度的分離并確定此物料的粒度組成。
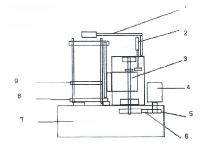
1.捶鐵 2.頂桿 3.偏心輪 4.電機 5.電機齒輪 6.同步帶 7.箱體 8.下滑板 9.托盤 拍擊式振篩機的使用操作1.設備運轉前須固定。固定采用底腳螺栓固定,可采用膨脹螺絲將設備固定在水泥地面上。 2.安裝試驗篩??蛻艨梢愿鶕约旱男枰?,加裝1-7層試驗篩。 3.設備帶有定時裝備,用戶可調節使用時間,開機后到時自動停機。調節時間前兩位為分鐘,后兩位為秒。用戶可根據自己需要調節運行時間。 4.設備拍擊高度出廠前以調好,用戶如有需要也可松開緊固螺母,調節頂桿頭螺紋升高或降低至合適位置后,再將螺母備死。 5.上下滑板,加油嘴等應定期加油。 6.每月定期檢查,加油。 7.安裝請打底腳螺絲。 拍擊式振篩機短視頻展示
拍擊振篩機相關鏈接: XSB-88型自動標準振篩機 |
![]() |
![]() |
||